5812 2ND STREET SARLINGTON, VA 22204




Mortgage Calculator
Monthly Payment (Est.)
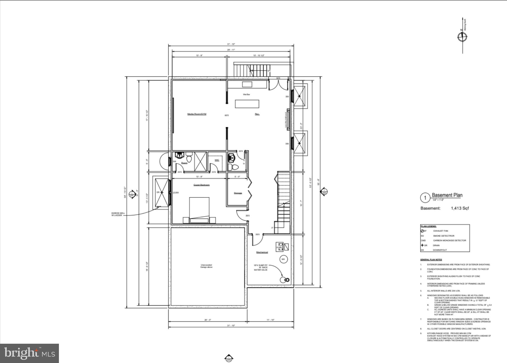
$4,558** Selling lot with building plans only for $999,000. Property has not been constructed yet** This rare opportunity offers a shovel-ready project in a prime Arlington location with fully approved permits and architectural plans included in the sale. You can skip the lengthy design and county approval phase and begin building this stunning, modern residence immediately, either with the original builder familiar with the site or a contractor of your choice. Property Highlights & Specifications Total Living Space: A massive 4,475 Sqf layout across three finished levels. Main Level (1,822 Sqf): Features a spacious open-concept Family Room and Dining area, a gourmet Kitchen with a large island, a functional Mudroom, and a private Study/Bedroom. Upper Level (1,644 Sqf): Designed for luxury with a sprawling Primary Suite, three additional large bedrooms, a dedicated Laundry Room, and a dramatic open-to-below view of the main floor. Finished Basement (1,413 Sqf): Engineered for entertainment with a Media Room/Gym, a full Wet Bar, an additional Guest Bedroom, and ample storage. Exterior & Parking: Modern aesthetic featuring a two-car garage (404 Sqf), a welcoming front porch, and a rear deck. Construction Ready Permit Status: All plans are tailored to Arlington, VA building codes and local design criteria. Technical Details: The plans specify high-efficiency Climate Zone 4 insulation and fenestration, fiber-cement siding, and professional-grade HVAC requirements. Save a year of planning and start your dream home today.
| 5 hours ago | Listing first seen on site | |
| 5 hours ago | Listing updated with changes from the MLS® |
The real estate listing information is provided by Bright MLS is for the consumer's personal, non-commercial use and may not be used for any purpose other than to identify prospective properties consumer may be interested in purchasing. Any information relating to real estate for sale or lease referenced on this web site comes from the Internet Data Exchange (IDX) program of the Bright MLS. This web site references real estate listing(s) held by a brokerage firm other than the broker and/or agent who owns this web site. The accuracy of all information is deemed reliable but not guaranteed and should be personally verified through personal inspection by and/or with the appropriate professionals. Properties in listings may have been sold or may no longer be available. The data contained herein is copyrighted by Bright MLS and is protected by all applicable copyright laws. Any unauthorized collection or dissemination of this information is in violation of copyright laws and is strictly prohibited. Copyright © 2020 Bright MLS. All rights reserved.


Did you know? You can invite friends and family to your search. They can join your search, rate and discuss listings with you.